
Techos integrados
Un mundo de posibilidades que se adapta a tu proyecto con total integración.
Amplia gama de soluciones adaptadas a tus necesidades
Los techos, junto con la iluminación y la integración de ambos, son cruciales para el ambiente del espacio que habitan. No solo realzan la estética, sino que también son vitales para las tareas de mantenimiento de las instalaciones. Por esta razón, y en nuestra posición de líderes en la industria de la iluminación, prometemos una integración sin fisuras.
En ARTESOLAR, hemos ideado sistemas que satisfacen todos los requisitos que un techo modular, sea de metal o madera, demanda para un proyecto específico.
Nuestras soluciones abarcan desde exteriores, con sistemas modulares, lamas y rejillas, hasta interiores, con sistemas de perfilado, visibles o ocultos, metálicos o de madera, para paredes o techos, todas ajustándose impecablemente a las demandas de los clientes.
También brindamos la opción de personalizar el proyecto con los acabados, perforaciones o materiales que mejor se adecúen a cada Proyecto.
En todos los escenarios, los techos son desmontables para simplificar el mantenimiento y poseen altas propiedades de absorción acústica.

Oficinas
Nuestros sistemas de techos permiten la integración de la iluminación a la vez que liberan espacio para las instalaciones y su mantenimiento, garantizando el bienestar en oficinas.

Auditorios
En auditorios es fundamental una buena acústica. Ofrecemos soluciones que permiten cumplir con este requisito aportando estética e integración con la iluminación.

Salas blancas
El sistema desarrollado para salas blancas, donde el panel funciona con un sistema de muelles a presión con junta de neopreno, aporta el estricto control ambiental necesario.

Pasillos
Los pasillos suelen ser zonas de paso de instalaciones. Su falso techo debe ser accesible de forma sencilla. Se ofrecen sistemas lineales que facilitan el desmontaje y acceso a las instalaciones.

Exteriores
Nuestras soluciones de techos para exteriores permiten liberar espacio en aquellos falsos techos que por motivos proyectuales se encuentren en el exterior, facilitando el paso de instalaciones en ellos.

Exteriores con lamas
Las lamas ofrecen soluciones estéticas con multitud de acabados según su ancho, su interdistancia y juntas. Nuestras soluciones está especialmente diseñadas para exteriores por su resistencia a la intemperie.
Techos de perfilería vista
Los techos de perfilería vista ha sido desarrollado bajo los principios de sencillez, funcionalidad y versatilidad dando como resultado un sistema de falso techo metálico de perfilería vista, ideal tanto para grandes como pequeños espacios. Su facilidad de montaje y mantenimiento son sus principales características.
Perfilería vista TEGULAR
El sistema reticular sencillo está compuesto por perfiles vistos con anchos de 15, 24 y 145 mm y paneles metálicos perforados o lisos. Se forma a partir de perfiles primarios de hasta 3600 mm y otros secundarios formando la rejilla de 1200 o 600 mm. Se montan mediante el apoyo del panel en el perfil.
Solicita más información o documentación técnica


T-15
- Perfil visto: 15 mm
- Modulación: 600 x 600 mm


T-24
- Perfil visto: 24 mm
- Modulación: 600 x 600 mm


T-30
- Perfil visto: 30 mm
- Modulación: 600 x 600 mm


T-Canal
- Perfil visto: 14,5 mm
- Modulación: 600 x 600 mm
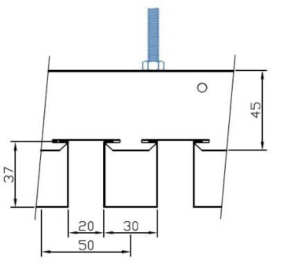
Perfilería vista 100/150/200
Combinación de perfil de chapa doblado y paneles autodistanciadores proporcionan estabilidad y simpleza a un robusto sistema. Sistema de ARTESOLAR de Entrecalles de chapa con sistema de paneles autodistanciadores . Sin necesidad de distanciadores entre los perfiles.
Solicita más información o documentación técnica


PERFIL-100
- Perfil visto: 100 mm
- Modulación: 1300 x 300 mm
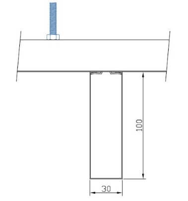
Techos de perfilería oculta
Perfilería oculta, donde lo realmente importante es el panel, agrupa una gama de productos de perfilería oculta, características que le permite integrarse en cualquier espacio manteniendo líneas básicas y sencillas.
Perfilería oculta CLIP-IN
Su panel, diseñado para un montaje en el perfil mediante clip-in, evita la colocación de perfiles secundarios, liberando espacio para el trazado de otras instalaciones. La perfilería queda oculta mejorando su estética a la vez que permite el desmontaje sencillo de todas las placas para su mantenimiento o el acceso a las instalaciones.
Solicita más información o documentación técnica


CLIP-600x600
- Ancho: 15 mm
- Modulación: 600 x 600 mm


CLIP-1200x300
- Ancho: 15 mm
- Modulación: 1200 x 300 mm
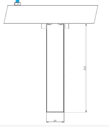
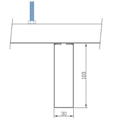
Perfilería oculta T-30 OCULTO
El panel está diseñador para un montaje mediante apoyo/engarce, evita la colocación de perfiles secundarios, liberando espacio para el trazado de otras instalaciones. La perfilería queda oculta mejorando su estética a la vez que permite el desmontaje sencillo de todas las placas para su mantenimiento o el acceso a las instalaciones.
Solicita más información o documentación técnica


T-30-600
- Ancho: 30 mm
- Modulación: 600 x 600 mm


T-30-1200
- Ancho: 30 mm
- Modulación: 1200 x 300 mm
Techos de lamas
Lamas agrupa la familia de productos lineales aportando soluciones estéticas con acabados abiertos, cerrados y con juntas. Especialmente indicado para espacios exteriores por su sistema de montaje y resistencia a la intemperie.
Lamas abiertas
Sistema formado por la modulación de lamas metálicas colocadas de forma horizontal con juntas abiertas . La perfilería se coloca en perpendicular a la dirección de las lamas y estas se colocan mediante presión sobre la cara inferior del perfil. Su modulación es variable en función de la lama.
Solicita más información o documentación técnica


LAMA 30-50
- Ancho: 30 mm
- Paso: 50 mm
- Largo máximo: 6000 mm


LAMA 100 CON JUNTA
- Ancho: 80-90 mm
- Paso: 100 mm
- Largo máximo: 6000 mm


LAMA 100 VERTICAL
- Ancho: 10 mm
- Paso: 100 mm
- Largo máximo: 6000 mm
Lamas Cerradas
Sistema formado por la modulación de lamas metálicas colocadas de forma horizontal sin juntas de separación entre ellas. La perfilería se coloca en perpendicular a la dirección de las lamas y estas se colocan mediante presión sobre la cara inferior del perfil. Su modulación es variable en función de la lama.
Solicita más información o documentación técnica


LAMA 100 SIN JUNTA
- Ancho: 100 mm
- Largo máximo: 6000 mm
Techos de bafles
La gama de bafles propone un sistema lineal de lamas horizontales (colocadas de canto) perforadas y fonoabsorbentes ideales para aportar un perfecto confort acústico. Sistema de techo de barreras fonoabsorbentes.
Bafles 30
Sistema lineal de bafles verticales perforadas y fonoabsorbentes ideales para aportar un perfecto confort acústico. Con una perfilería superior colocada de forma perpendicular respecto a la dirección longitudinal de bafle, este se monta mediante presión sobre el perfil. Los pasos entre bafles pueden ser de 100, 150 o 300 mm y alcanzan una longitud máxima de 3000 mm.
Solicita más información o documentación técnica


BAFLE 30X100-100
- Base: 30 mm
- Alto: 100 mm
- Interdistancia: 100 mm


BAFLE 30X150-150
- Base: 30 mm
- Alto: 150 mm
- Interdistancia: 150 mm
Bafles 50
Sistema lineal de bafles verticales perforadas y fonoabsorbentes ideales para aportar un perfecto confort acústico. Con una perfilería superior colocada de forma perpendicular respecto a la dirección longitudinal de bafle, este se monta mediante presión sobre el perfil. Los pasos entre bafles pueden ser de 100, 150 o 300 mm y alcanzan una longitud máxima de 3000 mm.
Solicita más información o documentación técnica


BAFLE 50X100-100
- Base: 50 mm
- Alto: 100 mm
- Interdistancia: 100 mm


BAFLE 50X150-100
- Base: 50 mm
- Alto: 150 mm
- Interdistancia: 100 mm
Bafles Tubular
Sistema lineal de lamas verticales perforadas y fonoabsorbentes ideales para aportar un perfecto confort acústico. Con una perfilería superior colocada de forma perpendicular respecto a la dirección longitudinal de bafle, este se monta mediante presión sobre el perfil. Los pasos entre bafles pueden ser de 100, 150 o 300 mm y alcanzan una longitud máxima de 3000 mm.
Solicita más información o documentación técnica


BAFLE TUBULAR
- Base: 50 mm
- Alto: 150 mm
- Interdistancia: 100 mm
Bafles Lisos
Sistema lineal de lamas verticales perforadas y fonoabsorbentes ideales para aportar un perfecto confort acústico. Con una perfilería superior colocada de forma perpendicular respecto a la dirección longitudinal de bafle, este se monta mediante presión sobre el perfil. Los pasos entre bafles pueden ser de 100, 150 o 300 mm y alcanzan una longitud máxima de 3000 mm.
Solicita más información o documentación técnica


BAFLE COLORES
- Base: 50 mm
- Alto: 100 mm
- Interdistancia: 100 mm
Techos para pasillos
Techos para pasillos, sistemas de techo para espacios lineales. Diseñados para facilitar el trazado de las instalaciones garantizando su accesibilidad.
Perfil 60-J8
Con perfilería occulta realizada en chapa galvanizada 47 mm de ancho, el extremo del panel se apoya/engarza sobre el perfil oculto. Para absorber irregularidades en el ancho del pasillo se crean fajas laterales en yeso lamiando. El diseño del panel, su sistema de plegado longitudinal y su mayor canto, le proporciona mayor estabilidad. Tiene una modulación de 300 mm de ancho y un largo máximo 3.000 mm.
Solicita más información o documentación técnica


PERFIL-60-J8
- Ancho: 300 mm
- Longitud máxima: 3000 mm
Perfil flotante
El panel se apoya sobre la perfilería vista, con un ancho de 120 mm, dispuesta longitudinalmente en la cabecera de los paneles consiguiendo un acabado enrasado. La modulación del panel es de 300 mm de ancho y puede llegar a 2.740 mm de largo máximo. El diseño de este sistema facilita el desmontaje de todas las placas facilitando el acceso a las instalaciones y su mantenimiento.
Solicita más información o documentación técnica


PERFIL FLOTANTE
- Perfil visto: 100 mm
- Ancho: 300 mm
- Longitud máxima: 2700 mm
Pasillos Antiflecha
Con perfilería oculta, el extremo del panel se apoya sobre el angular perimetral de la perfilería. El diseño del panel y su sistema de plegado longitudinal antiflecha le proporciona mayor estabilidad. Tiene una modulación de 300 mm de ancho y un largo máximo 3.000 mm.
Solicita más información o documentación técnica


AFL300
- Ancho: 300 mm
- Longitud máxima: 3000 mm
Pasillos flotante
Con un sistema de perfiles ocultos fijados a la pared y dispuestos longitudinalmente en la cabecera de los paneles, se consigue un sistema flotante y una separación perimetral de la pared. El montaje se realiza mediante apoyo/enganche del panel sobre el perfil.
Solicita más información o documentación técnica


FLOTANTE
- Perfil oculto: 17 mm
- Ancho: 300 mm
- Longitud máxima: 2700 mm
Techos especiales
Seguridad es una familia diseñada bajo los principios de seguridad elevada.
Soluciones de perfilería semi-oculta, trabajando bajo la acción de un sistema de pletinas de sujeción que bloquean los paneles y/o pasadores, lo convierten en la mejor elección para aquellas instalaciones donde el techo está sometido a situaciones más extremas.
Sistema integral especial para Salas Blancas donde el funcionamiento del panel con su sistema de muelles a presión con junta de neopreno aportan la solución para el estricto control ambiental que estas salas precisan. Su modulación es de 600 x 600 mm.
Seguridad para exteriores
Sus paneles están diseñados con un sistema de muelles que trabaja mediante presión contra el perfil. Su perfilería oculta forma carriles longitudinales, con un ancho de 40,5 mm, mecanizados para recibir el sistema de muelles del panel. Este sistema facilita el desmontaje de todas las placas facilitando el acceso a las instalaciones y su mantenimiento.
Solicita más información o documentación técnica


SEGURIDAD PARA
EXTERIORES
- Ancho visto: 8 mm
- Modulación: 600 x 600 mm
Sanitario
Sistema integral especial para Salas Blancas donde el funcionamiento del panel con su sistema de muelles a presión con junta de neopreno aportan la solución para el estricto control ambiental que estas salas precisan. Su modulación es de 600 x 600 mm.
Solicita más información o documentación técnica


MU-600SL
- Modulación entre ejes: 600x 600 mm
Islas
Mediante la colocación de islas se consigue el confort acústico de los espacios abiertos, en estas islas se puede integrar la iluminación, climatización y otras instalaciones.
Islas
Sistema individual decorativo con capacidad de absorción acústica y reflectante de la luz. Sistema de islas planas decorativos reflectantes y absorbentes acústicas.
Solicita más información o documentación técnica


Paneles metálicos
Individuales perforados o lisos, perforado o lisos, termo esmaltados. El diseño del panel, incorpora costillas que dan rigidez y permiten la suspensión de las islas de manera individual. Medidas según necesidades del proyecto.


Perforación
- Amplia gama de perforaciones.
Perfilería oculta
- De costillas interiores.
Sistema de montaje
- Suspensión directa del perfil curvado al forjado

- Clasificación RF
Clase A2 s1 d0.
Techos de lamas de madera
Techos de madera es la familia de techos modulares de madera. Sus acabados y formatos otorgan prestaciones de diseño, calidad y nobleza a los espacios donde se instalan.
Madera
Con lamas DM (MDF) y acabados melamínicos o madera natural barnizada, se colocan con una separación personalizable entre ellas. Las lamas se montan sobre el perfil mediante la presión de regletas que las recogen. Estas regletas tienen un cierre de seguridad que evitan la extracción o desprendimientos.
Solicita más información o documentación técnica


WS-40
- Perfil oculto: 30 mm


WS-80
- Perfil oculto: 30 mm
Madera
Con lamas DM (MDF) y acabados melamínicos o madera natural barnizada,. Las lamas se colocan en el perfil mediante presión de regletas que las recogen. Estas regletas tienen un cierre de seguridad que evitan la extracción o desprendimientos. Funcionan como cremallera y permiten el gripado de la lama a diferentes interdistancias.
Solicita más información o documentación técnica


WS-22-80V
- Perfil oculto: 30 mm
Rejilla
Sistema integral de celdillas abiertas base T para nervios de 15 o 24 mm. Las lamas de aluminio con sección en “U” se ensamblan para formar celdillas de 75, 100 y 150 mm. Compuesta por perfiles primarios de 3.600 mm y secundarios de 1.200 o 600 mm. El panel formado por celdillas horizontales y verticales apoya sobre el perfil con un efecto final enrasado.
Solicita más información o documentación técnica


R-T-15-75
- Ancho: 15 mm
- Celdilla: 75 x 75 mm


R-T-15-100
- Ancho: 15 mm
- Celdilla: 100 x 100 mm


R-T-15-150
- Ancho: 15 mm
- Celdilla: 150 x 150 mm
Techos de madera acústico
Techos de madera es la familia de techos modulares de madera. Sus acabados y formatos otorgan prestaciones de diseño, calidad y nobleza a los espacios donde se instalan.
Perfilería vista
Sistema de techo reticular de madera para perfilería vista con un ancho de 15, 24 o 14,5 mm. Sistema integral decorativo. Con entramado de perfilería modular vista. Amplia gama de acabados en madera natural o melamina combinado con múltiples perforados. El montaje se realiza mediante el apoyo del panel sobre el perfil consiguiendo un efecto tegular en el caso de las referencias WR-T15 y WR-T24 y un efecto enrasado en el WR-TCanal.
Solicita más información o documentación técnica


WR-T15
- Perfil visto: 15 mm
- Modulación estándar: 600 x 600 mm


WR-T24
- Perfil visto: 24 mm
- Modulación estándar: 600 x 600 mm


WR-TCanal
- Perfil visto: 14,5 mm
- Modulación estándar: 600 x 600 mm
Perfilería oculta
Sistema integral decorativo. Con entramado de perfilería modular oculta. Amplia gama de acabados en madera natural o melamina combinado con múltiples perforados. Con doble trama de perfilería y dos niveles, el panel se monta sobre el perfil mediante apoyo machihembrado consiguiendo un acabado oculto de la perfilería.
Solicita más información o documentación técnica


WR-600
- Perfil oculto: 24 mm
- Modulación estándar: 600 x 600 mm


WR-1200
- Perfil oculto: 24 mm
- Modulación estándar: 1200 x 300 mm
Oculta acústico
Sistema de techo modular acústico de madera para perfilería oculta. Con entramado de perfilería modular oculta y pérdida de juntas longitudinales. Amplia gama de acabados en madera natural o melamina combinado con múltiples perforados invisibles. Con doble trama de perfilería y dos niveles, el panel se monta sobre el perfil mediante apoyo machihembrado consiguiendo un acabado oculto de la perfilería.
Solicita más información o documentación técnica


WA-1200
- Perfil oculto: 24 mm
- Modulación estándar: 1200 x 300 mm
Paredes
Con lamas DM (MDF) y acabados melamínicos o madera natural barnizada. El montaje sobre rastrel interno portante para permitir gripado de la lama a diferentes interdistancias.
Solicita más información o documentación técnica


WS-WALL
- Perfil oculto: 30mm
Paredes acústico
Sistema integral para trasdosados de pared acústico decorativo con cavidades de absorción formadas por la superposición de capas de material. Rastrel interno portante para acabado final de pérdida de juntas longitudinales. Amplia gama de acabados en madera natural o melamina combinado con múltiples perforados invisibles. Con doble trama de rastrel MDF y perfil MDF de ensamble, el panel apoya sobre el perfil MDF de ensamble.
Solicita más información o documentación técnica


WA-WALL
- Perfil oculto: 24 mm
- Modulación entre ejes: 1200 x 300 mm
Acabados personalizados
Acabados personalizados muestra todos los acabados posibles con los que personalizar tu proyecto de techo modular.

RAL 9010
- Techo metálico
- Lamas metálicas
- Bafles metálicos
- Rejilla aluminio

RAL 9006
- Techo metálico
- Lamas metálicas
- Bafles metálicos
- Rejilla aluminio

ANODIZADO
- Techo metálico

RAL a elegir
- Techo metálico
- Lamas metálicas
- Bafles metálicos
- Rejilla aluminio

CEREZO

SICOMORO

ARCE

PINO

HAYA

ALBAR

ROBLE

CANALETO

CAOBA

ARCE

CEREZO

HAYA

PINO

ROBLE

FRESNO

WENGUE
Productos relacionados
Proyectos referentes
Comienza tu proyecto
Para Artesolar, la luz de la calle es más que un simple destello nocturno; es un testimonio de tecnología y dedicación profesional. En cada oficina iluminada, no solo hay luz, sino también una mejora palpable en el bienestar y la salud de las personas.
Tú aportas tus ideas; nosotros los medios, la tecnología y la experiencia. Desde el concepto hasta la implementación, desde la planificación hasta la ejecución, aseguramos que tu visión se convierta en soluciones tangibles. La tecnología se pone al servicio del bienestar y la innovación se entrelaza con la sostenibilidad.
Hace años que Artesolar nació con la misión de unir esfuerzos. Estamos aquí para ayudarte a convertir tus ideas en realidades buscando mejorar el bienestar de las personas, fomentar el ahorro energético y contribuir a un planeta más saludable.